Intill berget och med Slättgårdsskogen som fond föreslås två bostadshus bilda en ny sammanlänkande årsring mellan Bredäng och Mälarhöjden. Tillägget avser komplettera den befintliga typologin av smålägenheter och villor med större lägenheter för att möjliggöra för fler att stanna eller flytta till området.
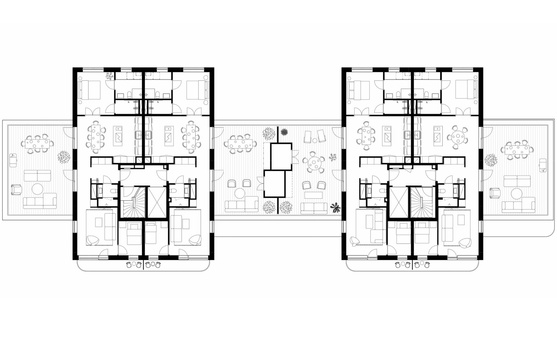
Bergshusen består av en överlappande struktur med lameller och punkthus längs med den sluttande Bredängsvägen. Lamellerna stärker gaturummet och skapar en tyst sida medan punkthusen reser sig bland trädtopparna och en småskalig rytm bildas i spelet dem emellan. Mötet med gatan gestaltas med murar i olika höjder, upphöjda uteplatser och omsorgsfullt utformade entréer.
Växlande material och kulör bryter upp skalan. Punkthusen gestaltas med varmt ljusa, släta fasader i kontrast till lamellernas barkfärgade träfasad och längsgående balkonger. Sockeln kläs i natursten med varierande struktur och entréerna ramas in med trä.
Majoriteten av lägenheterna görs genomgående mellan gata och skog, vilket ger kvaliteter som genomblickar fasad till fasad och ljus från flera riktningar. På lamellernas tak bildas generösa terrasser med vidsträckt utsikt över Mälaräng.






